Browse our exclusive listings.
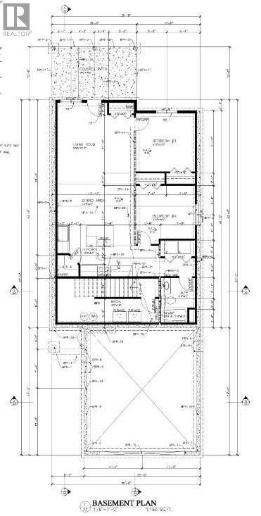
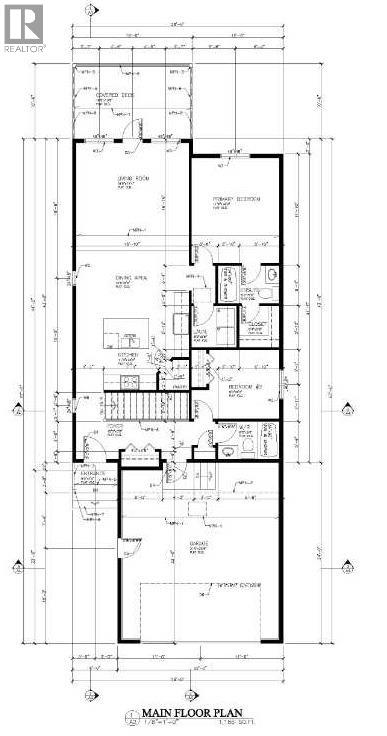
Welcome to this brand new bungalow designed for flexibility & modern comfort. Featuring a fully developed legal secondary suite in the basement; an ideal option for multi-generational living or added rental income. Quality built by New Tab Homes Ltd. in collaboration with DP76 Construction, this home showcases thoughtful design, efficient use of space, and contemporary finishes throughout. Estimated completion is April 2026, offering buyers a fantastic opportunity to select colors and finishes and personalize the home to suit their style. The main floor features 1,186 sq. ft. of well designed living space with a bright, open concept layout that seamlessly connects the living and dining area. The kitchen is both functional and stylish, offering a centre island, corner pantry, ample cabinetry, and convenient access to the covered deck. This level hosts a 4pc bathroom, 2 bedrooms, including a spacious primary bedroom complete with a 4pc ensuite and walk-in closet. A dedicated laundry room on the main floor adds everyday convenience. The secondary suite in the walkout basement offers 1,180sqft, 2 bedrooms, its own kitchen, spacious living area, full 4pc bathroom, and a separate laundry space—an ideal setup for extended family, guests, or tenants seeking an independent living space. Additional features include a 24’ x 22’ heated double garage, concrete driveway and a $5,000.00 credit to the buyer for appliances or window coverings. Desirable location close to all amenitites, schools, parks and walking paths. (id:55690)
| Bathroom Total | 3 | Bedrooms Above Ground | 2 |
| Bedrooms Below Ground | 2 | Bedrooms Total | 4 |
| Appliances | Garage Door Opener | Architectural Style | Bungalow |
| Basement Development | Finished | Basement Features | Walk Out, Suite |
| Basement Type | Full (finished) | Constructed Date | 2026 |
| Construction Material | Wood Frame | Construction Style Attachment | Detached |
| Cooling Type | Central Air Conditioning | Exterior Finish | Vinyl Siding |
| Flooring Type | Other | Foundation Type | Poured Concrete |
| Heating Type | Forced Air | Stories Total | 1 |
| Size Interior | 1186 Sqft | Total Finished Area | 1186 Sqft |
| Type | House |
| Attached Garage | 2 |
| Acreage | No | Fence Type | Not Fenced |
| Land Amenities | Park, Schools, Shopping | Size Depth | 34 M |
| Size Frontage | 11.16 M | Size Irregular | 4083.48 |
| Size Total | 4083.48 Sqft|4,051 - 7,250 Sqft | Size Total Text | 4083.48 Sqft|4,051 - 7,250 Sqft |
| Zoning Description | R-ld |
| Level | Type | Dimensions |
|---|---|---|
| Lower Level | Bedroom | 11.17 Ft x 10.00 Ft |
| Lower Level | Kitchen | 14.50 Ft x 9.50 Ft |
| Lower Level | Dining Room | 14.50 Ft x 8.00 Ft |
| Lower Level | Laundry Room | 5.00 Ft x 6.67 Ft |
| Lower Level | 4pc Bathroom | 6.50 Ft x 8.33 Ft |
| Lower Level | Living Room | 14.50 Ft x 32.83 Ft |
| Lower Level | Bedroom | 11.17 Ft x 11.00 Ft |
| Main Level | 4pc Bathroom | 8.17 Ft x 5.00 Ft |
| Main Level | Kitchen | 11.33 Ft x 13.00 Ft |
| Main Level | Living Room | 15.00 Ft x 14.33 Ft |
| Main Level | Primary Bedroom | 11.67 Ft x 14.00 Ft |
| Main Level | 4pc Bathroom | 8.17 Ft x 5.00 Ft |
| Main Level | Other | 5.33 Ft x 5.50 Ft |
| Main Level | Laundry Room | 6.00 Ft x 5.50 Ft |
| Main Level | Dining Room | 13.00 Ft x 9.00 Ft |
| Main Level | Bedroom | 9.33 Ft x 9.17 Ft |
Unlock Your Real Estate Dreams with Calgary Dream Properties - Join me to Building Your Future!
At Calgary Dream Properties, I am committed to delivering unparalleled expertise and unwavering integrity in the realm of luxury real estate. With a dedication to professionalism, I go above and beyond to provide my clients with top-tier service, ensuring they achieve their unique real estate aspirations. Join me at Calgary Dream Properties to embark on a journey towards realizing your dream property goals.
Contact US